CZ / EN
Facebook
Váš průvodce světem realit
HomeForLiving Realitní kancelář v Brně
HomeForLiving - logo
PRONÁJEM - KOMERČNÍ
BRNO | RADLAS | OBCHODNÍ PROSTORY
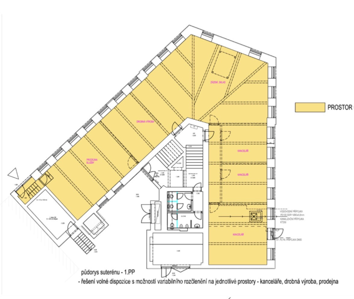
270 M2
ZAŘÍZENO: NEUVEDENO
VÝTAH: NE
ID ZAKÁZKY: 1863/
PENB: G - MIMOŘÁDNĚ NEHOSPODÁRNÁ
K NASTĚHOVÁNÍ: 01.05.2026
K pronájmu nabízíme nebytové prostory do poslední chvíle využívané jako denní spa, masáže a privátní posilovna.
Prostory o výměře bezmála 270 m2 je však možno využít i např. jako kancelářské prostory, nebo show-room. Vstup přímo z ulice. V prostoru zůstává zařízená recepce a kuchyňka. Veškeré prostory jsou rozděleny pouze sádrokartonovými stěnami (v tuto chvíli na 14 menších místností), ale je velice jednoduché prostor přizpůsobit pro potřeby nájemce. Jsou zde vybudovány dvě šatny (dámská, pánská) i potřebné toalety (dámské, pánské, pro zaměstnance). Dále jsou vybudovány dvě sprchy a úklidová místnost. Pro více informací volejte uvedeného makléře.
Cena: 75 000 Kč / ZA NEMOVITOST
(+ zálohy na služby a energie )
info@home4living.cz
design © DABRAKA